St. Michaels Street, Sutton-in-Ashfield

To Let £650 pcm

3 1 2

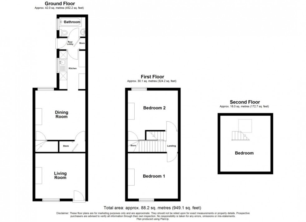
Living Room: 12`6" x 11`3" (3.80m x 3.44m) with radiator, carpet to floor, feature fireplace with inset surround, meter cupboard housing the utility meters, UPVc double glazed entrance door, UPVc double glazed window overlooking St. Michaels Street

Inner Lobby: with understairs storage cupboard

Dining Room: 12`4" x 12`3" (3.76m x 3.73m) with UPVc double glazed window overlooking the rear garden, radiator and laminate flooring

Kitchen: 6`4" x 9`7" (1.94m x 2.91m) containing a range of white high gloss finish wall and base units, contrasting granite effect roll edge work surfaces, white tiled splashbacks, inset stainless steel sink and drainer with mixer tap, space and point for cooker, appliance space for fridge/freezer, plumbing for washing machine, dark grey tiled flooring and UPVc double glazed window

Rear Entrance Lobby: with tiled flooring, UPVc double glazed opaque window and rear entrance door

Boiler Cupboard: housing the Baxi combination gas boiler and tiled flooring

Bathroom: 6`4" x 4`8" (1.94m x 1.43m) containing a three piece suite comprising panelled bath with mains shower system over, pedestal wash hand basin and low flush WC, radiator, UPVc double glazed opaque window, cream tiled flooring and white tiled splashbacks

Stairs: rising to first floor landing with doors to ……………

Front Bedroom 1: 12`5" x 11`4" (3.78m x 3.44m) with UPVc double glazed window, carpet to floor and radiator

Rear Bedroom 2: 12`4" x 12`3" (3.75m x 3.74m) with UPVc double glazed window, radiator, large overstairs wardrobe and carpet to floor

Stairs rising to ……………..

Attic Bedroom 3: 12`4" x 16`1" (3.75m x 4.90m) with radiator, Velux window and carpet to floor

Outside: Enclosed rear lawned garden

Bond and Credit Checks: A bond of £750.00.00 will be required. Rent to be paid monthly in advance by Bank Standing Order.

  • 3 Bedrooms
  • Sutton-In-Ashfield
  • Mid Terrace
  • Unfurnished
  • Children Welcome
  • Sorry, No Smokers
  • Medium sized garden
  • On Street Parking
Floorplan for St. Michaels Street, Sutton-in-Ashfield
EPC Graph for St. Michaels Street, Sutton-in-Ashfield

Get a free market appraisal

Find out how much your property is worth