The Common, Crich, DE4

For Sale £650,000

3 1 4
Offered with no upward chain is this superb characterful, detached, former public house with planning consent granted to convert into residential and offering flexible accommodation to rearrange to the purchaser's own taste, offered alongside two building plots with planning consent granted for the erection of two three bedroomed detached bungalows. The plans approved are for a three bedroomed house and a four bedroomed house. Crich is a highly regarded residential village location with an array of local amenities. Viewing is highly recommended to avoid disappointment.

THE KINGS ARMS:

Entrance Lobby: 1.49m x 1.07m (4'10" x 3'6"), Two part glazed entrance doors and double doors open to....

Main Bar Area: 11.43m x 7.54m (37'6" x 24'8"), Central bar area, timber double glazed leaded light windows, fitted bench seating, exposed stone feature wall. Door to the rear entrance porch.

Dart Room: 4.43m x 4.17m (14'6" x 13'8"), Situated off to the left of the main bar, feature porthole window and leaded light window, cast iron fire surround.

Games Room: 5.46m x 5.18m (17'10" x 16'11"), Double glazed leaded light window to the front, two windows to the rear.

Inner Corridor: 4.47m x 1.34m (14'7" x 4'4"), Providing access to the toilets and there is a part glazed front entrance door. Stair case rising to the first floor function room.

Ladies Toilets: 2.79m x 2.76m (9'1" x 9'), Two low flush WC, two wash hand basins, fully tiled walls, ceramic tiled flooring.

Gents Toilets: 2.81m x 2.68m (9'2" x 8'9"), Containing a low flush WC cubicle, stainless steel urinal, two wash hand basins, fully tiled walls, ceramic tiled flooring.

Storeroom Off: 2.22m x 1.39m (7'3" x 4'6")

Cellar: 4.34m x 2.56m (14'2" x 8'4"), Stainless steel sink unit and door opens to the...

Side Barrel Store: 4.51m x 2.34m (14'9" x 7'8"), Door to The Common. Store room off and door to the darts room.

Boiler Room: 2.00m x 1.38m (6'6" x 4'6"), Containing a Baxi floor standing boiler operating the ground floor central heating system.

Former Kitchen: Quarry tiled floor to part, fire exit.

Covered Passageway: Leading to the indoor skittle run.

Skittle Run: 9.48m x 3.96m (31'1" x 12'11"), Door to the rear block paved area.

On The First Floor:

Landing: 6.77m x 1.75m (22'2" x 5'8"), Two double glazed windows and step rise to the lounge.

Lounge: 6.18m x 3.84m (20'3" x 12'7"), Dual aspect double glazed windows, double panelled radiator, glazed door opens to the...

Conservatory: 6.65m x 2.22m (21'9" x 7'3"), Please note this area will be demolished as part of the planning consent. With a part glazed rear entrance door, single drainer sink unit, double glazed window, radiator and pine panelled ceiling.

WC Off: Containing a low flush WC.

Breakfast Kitchen: 4.33m x 3.28m (14'2" x 10'9"), Single drainer sink unit with hot and cold tap, inset to the work surface a range of wall and base units, space for larder fridge freezer, double glazed window to the rear.

Side Bedroom 1: 5.19m x 3.40m (17' x 11'1"), Bay window and radiator.

Front Bedroom 2: 4.41m x 4.20m (14'5" x 13'9"), Double glazed window and radiator.

Front Bedroom 3: 3.74m x 3.28m (12'3" x 10'9"), Double glazed window and radiator.

Family Bathroom: 5.47m x 2.56m (17'11" x 8'4"), Containing a panelled bath with hand grips, walk in shower enclosure, low flush WC, wash hand basin, a range of fitted wardrobes with louvered doors, radiator, double glazed window and fully tiled walls.

Function Area: 10.88m x 5.52m (35'8" x 18'1"), Three double glazed windows to the front, stairs descend to the ground floor inner corridor. Steps rise to the bar area.

Bar Area: 4.17m x 3.30m (13'8" x 10'9"), Single drainer sink unit.

Boiler Room: 3.05m x 1.73m (10' x 5'8"), Containing a floor standing boiler operating the first floor.

Externally To The Rear: There is a block paved pathway to the rear with access to the skittle run. Elevated patio area over the skittle run.

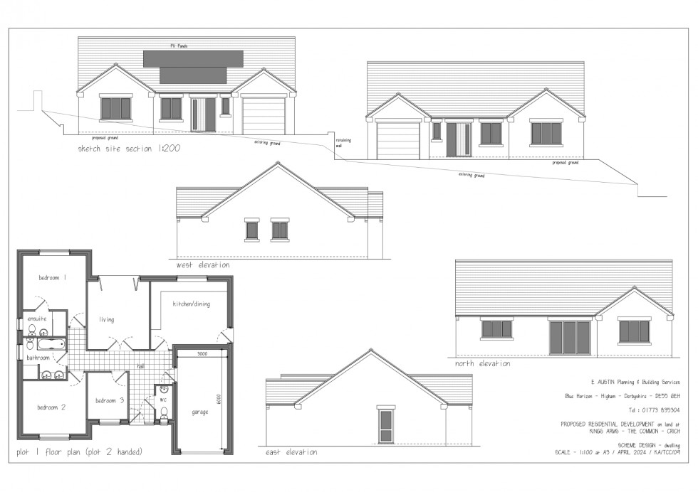
TWO BUILDING PLOTS:

Planning Consent: Planning Consent was issued by Amber Valley Borough Council in accordance with Decision Notice AVA/2024/0396 for the erection of two single storey dwellings in the car park of the former Kings Arms. A copy of the Planning Application is available for down load on The Amber Valley Borough Council's Website.
  • Flexible accommodation to rearrange to the purchasers own taste
  • Former public house with planning consent granted to convert into residential
  • Offered alongside two building plots with planning consent granted for the erection of two three bedroomed detached bungalows
  • Crich is a highly regarded residential village location with an array of local amenities
Floorplan for The Common, Crich, DE4 Floorplan for The Common, Crich, DE4 Floorplan for The Common, Crich, DE4
EPC Graph for The Common, Crich, DE4

Get a free market appraisal

Find out how much your property is worth