Hickton Road, Swanwick, DE55

Sold Subject to Contract OIRO, £399,950

3 2 1
Viewing is highly recommended on this beautiful, extended, three double bedroomed, detached family house which enjoys a premier location in this highly regarded residential village location. Lovely woodland open setting to the rear with a southernly aspect. All set on a plot of 0.116 of an acre. Comprises: entrance hall, lounge, fitted family dining kitchen and side entrance porch. On the first floor landing, three double bedrooms with open plan ensuite bathroom and spacious family shower room. In-out block paved driveway to the front provides off road car standing leading to garage. Beautiful rear lawned gardens enjoying the delightful woodland and open aspect to rear and superb storage cellars beneath the property.


Storm Porch: With externally light point, Composite leaded light part glazed entrance door with complementary UPVc double glazed leaded light side panels open to....

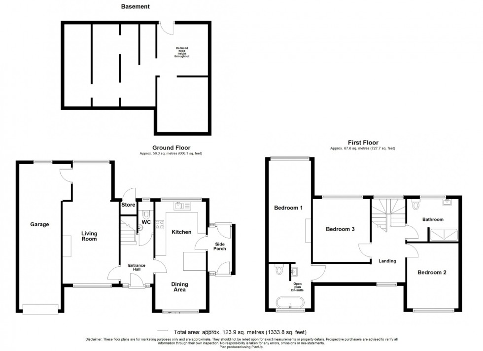
Entrance Hallway: 2.90m x 1.95m (9'6" x 6'4"), Laminate flooring, coving to the ceiling, double panelled radiator, attractive panelled to walls, feature dog leg stairs rise to first floor with oak hand rail, and oak panelled doors open to.....

Cloakroom WC: 1.80m x 0.91m (5'10" x 2'11"), Containing a close coupled low flush WC, vanity wash hand basin with splash back tiling, ceramic tiled flooring, attractive panelling to walls, timber window.

Lounge: 4.84m x 3.32m (15'10" x 10'10"), UPVc double glazed leaded light window enjoys the view over the front, living flame coal effect gas fire to a marble Adam style fire surround with raised marble hearth and fire back, oak effect laminate flooring, coving to ceiling and radiator.

Sitting Area: 2.42m x 2.20m (7'11" x 7'2"), UPVc double glazed picture window frames the view over the rear garden and view of the Hayes. Oak laminate flooring, coving to the ceiling and pedestrian door opens to the garage.

Family Dining Kitchen: 6.42m x 3.07m (21' x 10'), Containing a comprehensive range of fitted wall and base units in Dove Grey, Franke asterite, single drainer sink unit with mixer tap, UPVc double glazed picture window frames the delightful view of the rear garden and woodland setting to the rear. AEG integrated dish washer, AEG induction four ring hob, AEG electric fan assisted double oven and AEG combination microwave oven, integrated larder style fridge freezer, space for American style fridge, fitted two person breakfast bar, integrated washing machine, UPVc double glazed window to the front and six panel timber part glazed door opens to the.....

Side Entrance Porch: 2.61m x 1.38m (8'6" x 4'6"), UPVc double glazed part glazed entrance door with part glazed side panel and double glazed door opens to the rear garden. Panelling to the wall.

On The First Floor:

Landing: 4.85m x 1.97m (15'10" x 6'5"), Spacious landing dual aspect UPVc double glazed windows enjoying the view over the front and rear garden, attractive panelling to wall, double panelled radiator, oak effect laminate flooring, access to the roof space, doors open to.....

Inner Landing: 3.31m x 1.11m (10'10" x 3'7"), UPVc double glazed picture window to Hickton Road, oak laminate flooring.

Dual Aspect Bedroom 1: 8.81m x 2.43m (28'10" x 7'11"), Dual aspect UPVc double glazed windows enjoying the view over the front and rear garden and radiator. Spot lighting to the ceiling, access to the roof space, oak effect laminate flooring and open plan to....

Open Plan Ensuite Bathroom: Containing an oval bath tub with free standing mixer tap with hand held shower attachments, wall mounted circular heated towel rail, spot lighting to the ceiling, vanity wash hand basin with mixer tap tiled splash back, low flush WC.

Rear Bedroom 2: 3.64m x 3.32m (11'11" x 10'10"), Feature wood panelled wall, UPVc double glazed window enjoys the delightful view of the rear garden, radiator

Front Bedroom 3: 3.78m x 3.64m (12'4" x 11'11"), UPVc double window enjoys the delightful view to Hickton Road and radiator.

Family Bathroom: 3.01m x 2.41m (9'10" x 7'10"), A well pointed and recently refitted family bathroom containing a white suite comprising panelled bath, walk in shower enclosure with thematically controlled drench shower with hand held shower attachment to the mixer tap, vanity wash hand basin and low flush WC.

Externally To The Front: In out block paved driveway provides a good amount of off road car standing with

Garage: 8.81m x 2.56m (28'10" x 8'4"), With an electrically controlled roller shutter door, power light and cold water tap.

Externally To The Rear: All set on in a total plot of 0.116 of an acre this impressive garden enjoys a delightful rear setting all of which must be viewed in order to be fully appreciate this southernly aspect garden backing onto the open aspect Hayes Conference Centre. The mainly lawned garden has a feature swing, feature patio area, steps descend to the lawned garden with flower beds.

Cellar Storage: The property has the benefit of four storage cellars which run beneath the property.

Cellar 1:

Cellar 2:

Cellar 3:

Cellar 4:

Viewing: By appointment through Savidge & Brown on 01773 831111 pressing option 2 for residential sales.

Postcode: The postcode for the satellite navigation user is DE55 1AG

Offer Procedure: Before contacting a Building Society, Bank or Solicitor you should make your offer to our office and speak to a member of staff dealing with the sale as any delay may result in the sale being agreed to another purchaser incurring unnecessary costs.
Under the Estate Agency Act 1991 you will be required to provide us financial information in order to verify your position before we can recommend your offer to the vendor. We will also require proof of identification in order to adhere to Money Laundering Regulations.

Disclaimer: Whilst we endeavour to make our sales particulars fair, accurate and reliable, they are only a general guide to the property and, accordingly, if there is any point which is of particular importance to you, please contact the office. SERVICES: The Agents have not tested any apparatus, equipment, fittings or services and so cannot verify they are in working order. The buyer is advised to obtain verification. MEASUREMENTS: Please note all the measurement details are approximate and should not be relied upon as exact.
  • Viewing is highly recommended on this beautiful, extended, three double bedroomed, detached family house which enjoys a premier location
  • Lovely woodland open setting to the rear with a southernly aspect. All set on a plot of 0.116 of an acre
  • Entrance hall, lounge, fitted family dining kitchen and side entrance porch. Three double bedrooms, open plan ensuite bathroom and spacious shower room
  • In-out block paved driveway to the front, good sized garage. Beautiful rear lawned gardens enjoying the delightful woodland and open aspect to rear
  • Superb storage cellars beneath the property ideal
  • Easy access to the A38 & M1 Motorway
  • Council Tax Band D
  • EPC Rating TBA
Floorplan for Hickton Road, Swanwick, DE55
EPC Graph for Hickton Road, Swanwick, DE55
Similar Properties

Get a free market appraisal

Find out how much your property is worth