Meadow Lane, South Normanton, DE55

Under Offer Offers in Excess of, £475,000

5 4 3
A unique opportunity to acquire this mixed use of five bedroomed detached residential property with an adjoining commercial property comprising club house suitable for a wide range of uses subject to planning consent. Set on a total site are of 1.102 of an acre together with potential residential development opportunity subject to planning. The residential element comprises: entrance hall, lounge, dining room, dining hallway, extended dining kitchen, cloakroom WC. Five bedrooms ensuite bathroom, family shower room. The commercial element comprises: Club house, cellar, Ladies & Gents toilets. Suitable for a wide range of uses including annexe, home office, dance school, nursery and a host of uses subject to planning consent.

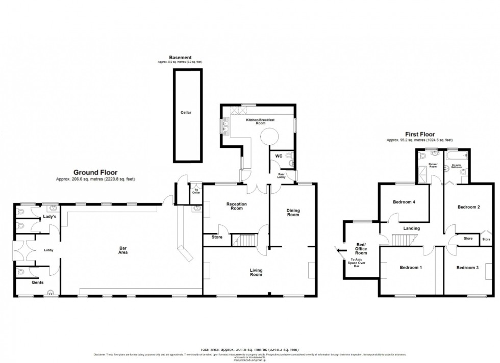
The Residential Accommodation 35 Meadow Lane Comprises:: A pair of semi detached houses knocked into one large family sized dwelling which has been extended and improved over the years to provide good sized family accommodation.

Side Entrance Hallway: 1.87m x 1.12m (6'1" x 3'8")

Cloakroom WC: 1.77m x 132.00m (5'9" x 433'), Containing a low flush WC, pedestal wash hand basin, fully tiled walls, ceramic tiled flooring, radiator and UPVc double glazed window.

Lounge: 3.63m x 3.58m (11'10" x 11'8"), Log burning stove to feature stone fire place, laminate flooring, wall light points and ceiling light points, UPVc double glazed window, open plan to.....

Sitting Room: 4.62m x 3.71m (15'1" x 12'2"), UPVc double glazed window enjoys the view to Meadow Lane, laminate flooring and UPVc double glazed windows. Door returns to the dining hallway.

Extended Breakfast Kitchen: 6.08m x 5.35m (19'11" x 17'6"), Containing a range of fitted wall and base units, fitted breakfast bar, double bowl with single drainer stainless steel sink unit with mixer tap, Alpha wall mounted gas combination boiler, UPVc double glazed windows, plumbing and space for washing machine and dishwasher, gas cooker point and space, extractor fan with stainless steel splash back below, fluorescent lighting strip to ceiling, ceramic tiled floor, UPVc double glazed windows, UPVc part glazed door opens to the rear and part glazed door opens to......

Dining Hallway: 4.65m x 3.64m (15'3" x 11'11"), UPVc double glazed window, gas fire not tested to the brick built fire place. Door opens to the Unity Club and doors return to the lounge and sitting room.

On the First Floor: Landing with doors opening to....

Rear Bedroom 1: 3.70m x 3.64m (12'1" x 11'11"), UPVc double glazed window enjoys the view to the former Fordbridge Lane Windmill.

Ensuite Bathroom: 2.57m x 1.82m (8'5" x 5'11"), Containing a panelled bath with hand grips, pedestal wash hand basin and low flush WC, fully tiled walls and UPVc double glazed window.

Front Bedroom 2: 4.66m into wardrobe x 3.68m (15'3" x 12'), UPVc double glazed window and radiator.

Rear Bedroom 3: 3.42m x 2.83m (11'2" x 9'3"), UPVc double glazed window and radiator.

Front Bedroom 4: 3.72m x 3.68m (12'2" x 12'), UPVc double glazed window and radiator.

Rear Bedroom 5: 3.70m x 3.64m (12'1" x 11'11"), UPVc double glazed window and radiator.

Study: 2.99m x 2.77m (9'9" x 9'1"), With eaves storage space UPVc double glazed dormer style window.

Shower Room: 2.53m x 1.93m (8'3" x 6'3"), Containing a walk in shower enclosure with an electric shower, vanity wash hand basin, low flush WC and UPVc double glazed window.

Externally To The Front: The property has a frontage to Meadow lane with double wrought iron gates open to the block paved driveway to the side of number 35 Meadow Lane which provides off road car standing. The access to the club area is also from Meadow Lane which benefits from return frontage to Fordbridge Lane.

Externally To The Rear: There is a good sized rear car park and a long lawned garden all set on a total plot of 1.102 of an acre. There is a lawn area to the rear of the Unity Club with tress and shrubs. There is a timber covered smoking area to the patio. There is a god amount of potential for residential development subject to planning consent.

The Unity Club Accommodation Comprises:: A single storey club house located adjoining number 35 Meadow Lane.

Entrance Porch: 2.54m x 1.27m (8'4" x 4'2"), With double timber entrance doors.

Entrance Hallway: 2.45m x 1.27m (8' x 4'2")

Ladies Toilets: 3.36m x 2.10m (11' x 6'10"), Containing two WC cubicles and vanity wash hand basin, UPVc double glazed windows and and electric hand dryer.

Gents WC: 3.39m x 2.09m (11'1" x 6'10"), Containing three urinals, pedestal wash hand basin, UPVc double glazed windows and low flush WC.

Club Room: 10.83m x 7.02m (35'6" x 23'), With raised stage area, bar, fitted bench seating with radiators behind, UPVc double glazed windows to the front and rear provide a good amount of natural day light.

Cellar:

Business: The property is no longer trading as a social club.

Planning: The property offers a good degree of hope value for redevelopment to club house and the land. The property is being sold with the existing planning use as a residential property with the existing use of a social club. All planning enquiries are to be directed to Bolsover District Council The Arc High Street Clowne Derbyshire S43 4JY Telephone: 01246 242424.


Overage: Our clients reserve the right to add an overage covenant for residential development within the car park and land to rear. Please contact the marketing agents for further information.

Viewing: By appointment through Savidge & Brown on 01773 831111 pressing option 2 for residential and commercial sales.

Postcode: The postcode for the satellite navigation user is DE55 5TG.

Grant Of Probate: Please note the property is being offered for sale with vacant possession upon completion. The sellers of the property are awaiting the grant of probate to come through. The sale cannot be completed until the grant of probate has been awarded.

Mixed Use: Please note as this property is a mixed use of residential and commercial property and with land, we would recommend discussing this with any financial broker as a specialist mixed use lender may be required if finance required.

Offer Procedure: Before contacting a Building Society, Bank, lending institution or Solicitor you should make your offer to our office and speak to a member of staff dealing with the sale as any delay may result in the sale being agreed to another purchaser incurring unnecessary costs.
Under the Estate Agency Act 1991 you will be required to provide us financial information in order to verify your position before we can recommend your offer to the vendor. We will also require proof of identification in order to adhere to Money Laundering Regulations.

Anti Money Laundering Checks: In accordance with the UK Money Laundering Regulations, we are required to carry out Anti-Money Laundering (AML) checks on all buyers. This includes identity verification, sanctions screening, and Politically Exposed Persons (PEP) checks, along with ongoing monitoring. A fee of £36.00 per person (inclusive of VAT) will be payable to cover the cost of these checks. Buyers will be required to provide proof of identity, proof of address, and evidence of the source of funds before we can proceed with the sale.

Disclaimer: Whilst we endeavour to make our sales particulars fair, accurate and reliable, they are only a general guide to the property and, accordingly, if there is any point which is of particular importance to you, please contact the office. SERVICES: The Agents have not tested any apparatus, equipment, fittings or services and so cannot verify they are in working order. The buyer is advised to obtain verification. MEASUREMENTS: Please note all the measurement details are approximate and should not be relied upon as exact.
  • A unique opportunity to acquire this mixed use of five bedroomed detached residential property with an adjoining commercial club house with toilets & cellar
  • Set on a total site are of 1.102 of an acre together with potential residential development opportunity subject to planning for a wide range of uses
  • Entrance hall, lounge, dining room, dining hallway, extended dining kitchen, cloakroom WC. Five bedrooms ensuite bathroom, family shower room
  • Club house, Ladies & Gents toilets suitable for a wide range of uses including annexe, home office, dance school, nursery and a host of uses STP
  • Council Tax Band E
  • Business Rateable Value (from 1 April 2026) £4,500
  • Commercial EPC Rating C
Floorplan for Meadow Lane, South Normanton, DE55 Floorplan for Meadow Lane, South Normanton, DE55
EPC Graph for Meadow Lane, South Normanton, DE55
Similar Properties

Get a free market appraisal

Find out how much your property is worth